「子供4人がのびのび遊べて、片付けもラクな間取りにしたい」
「6人家族が快適に暮らせる平屋や2階建ての事例が見たい」
「大家族の朝の洗面所渋滞や、膨大な洗濯物をどうにかしたい」
子供4人の6人家族のための理想的な間取りづくりに悩む方は多いでしょう。広さや収納、プライバシーや家事効率などの大家族ならではの課題を解決しつつ、快適な生活空間を実現するのは容易ではありません。
あきとはいえ、適切な計画と工夫をすれば家族全員が心地よく暮らせる住まいは実現できますよ!
そこで本記事では、これまで8,000名以上の家づくりサポートをしてきた家づくりのプロが、以下の項目を紹介します。
効率的な動線計画から将来を見据えた可変性まで、快適な暮らしを実現するための秘訣を伝授します。
さらに、「すーさんのLINE相談窓口」に登録すると、厳選間取り250選など家づくりに役立つ6大特典を無料プレゼントしています。



LINE相談では、間取り診断やセカンドオピニオンなど家づくりに関するあらゆる相談を無料でサポートしています!
「ハウスメーカーの営業トークに流されたくない」「家づくりで後悔したくない」という方はお気軽にご相談ください。
\間取りプラン他6つの特典プレゼント/
↓今すぐダウンロード↓
✅ 間取りプラン250選
✅ 家づくりセミナー動画
✅ ハウスメーカー攻略ガイド
✅ 収納計画100のチェックリスト
✅ ハウスメーカー選び100の質問
✅ 家づくり後悔ポイント130のチェックリスト


子供4人の6人家族に必要な間取りの広さは?


子供4人の6人家族が快適に暮らすためには、家族全員が集まるLDKの広さと、それぞれのプライバシーを守る個室の数のバランスが非常に重要です。
まずは、目安となる面積や部屋数について、以下の3つのポイントを確認していきましょう。
国が定める基準から、注文住宅で実際に選ばれているリアルな広さまで、わかりやすく解説します。
6人家族で最低限必要な広さは70㎡(約21坪)
国土交通省が公表している「住生活基本計画における最低居住面積水準」では、6人家族が生活するために最低限必要な面積を70㎡(約21坪)と定めています。
これは、都市部でのマンション生活などを想定した健康で文化的な生活を送るための最小ラインです。
21坪という広さは、一般的な3LDKのマンションと同程度です。子供4人の個室をすべて作るのは難しいですが、リビング学習を取り入れたり、寝室を大きな共有スペースにしたりすることで、支障なく暮らすことは可能です。



工夫次第でコンパクトでも家族の距離が近い家になりますね!
ゆとりを持って暮らすなら35坪〜45坪が目安
豊かな住生活を実現するための理想値である「誘導居住面積水準」では、6人家族に望ましい広さは約53坪(175㎡)とされています。
しかし、これはかなり広い基準であるため、実際の注文住宅で子供4人の個室を確保しつつ、予算とのバランスを考えると35坪〜45坪が現実的な目安となります。



35坪以上あれば子供部屋だけでなくパントリーなどの収納も充実させやすいですよ!
部屋数は5LDK〜6LDKが一般的
子供4人にそれぞれ個室を与えるなら、夫婦の寝室と合わせて5LDKの間取りが基本となります。さらに、来客用の客間や、家族で共有できる畳コーナーをプラスして6LDKにするケースも一般的です。
家族の成長に合わせて、子供が小さいうちは大きな1部屋として使い、将来的に壁を作って仕切れる可変性のある間取りも検討してみましょう。



子供たちの成長に合わせてお部屋の使い方も柔軟に変えていきたいですね!
【2階建て】子供4人の6人家族の間取り例3選


子供4人の6人家族が2階建てで暮らすなら、限られた面積の中で家族全員の個室と家事効率のよさをどう両立させるかが鍵となります。
ここでは、大家族の暮らしを快適にする工夫が詰まった、実際の間取り例を3つ紹介します。
それぞれの間取りのポイントを詳しく確認していきましょう。
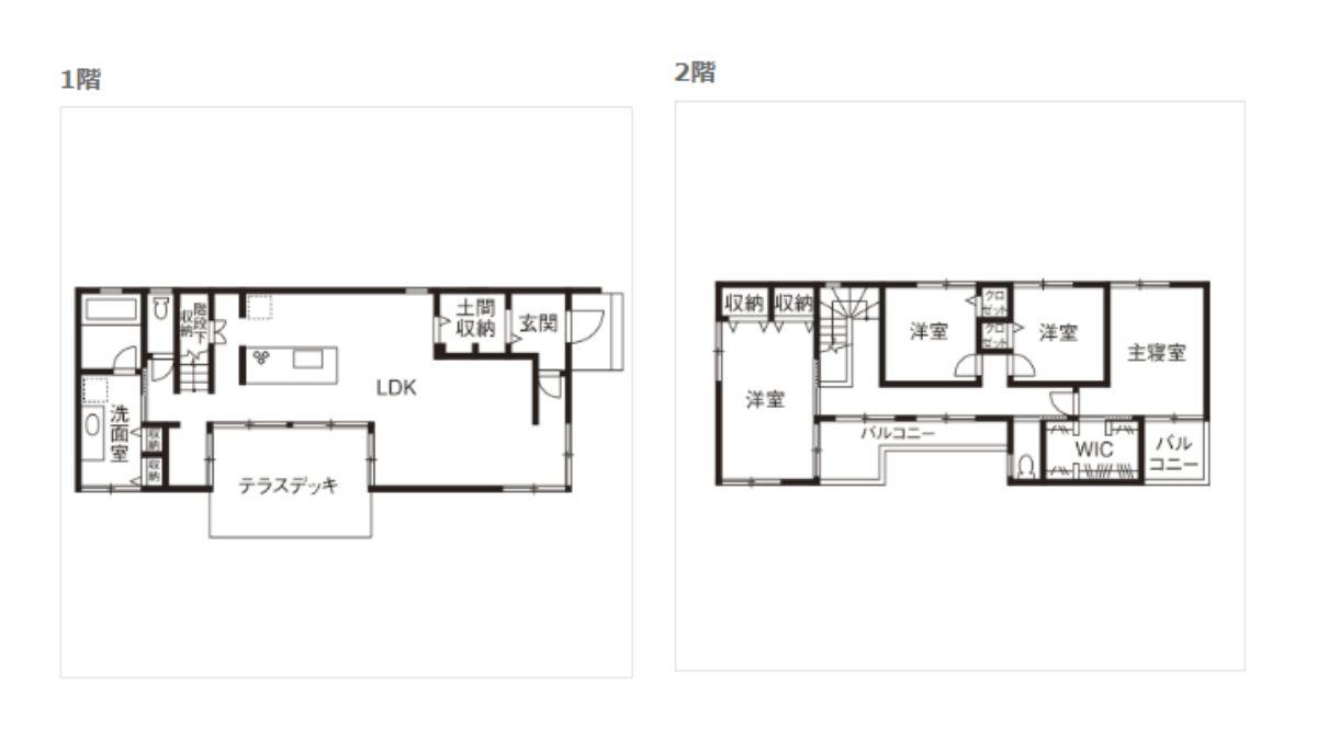
1. 2世帯住宅の工夫を応用した個室と共有スペースを両立する5LDK


2世帯住宅の設計ノウハウを活かしたこの住まいは、大人数が一つの屋根の下で快適に暮らすための適切な距離感が保たれています。
特に、スキップフロアや高い天井を活かした20畳のLDKは、家族6人が一堂に会しても窮屈さを感じさせない圧倒的な開放感が魅力です。
また、フロアごとにゆるやかに空間を仕切ることで、家族の気配を感じつつも、それぞれのプライバシーを確保しやすい構造になっています。



20畳もの広々としたLDKなら、家族6人が集まってもゆったりとリラックスして過ごせそうですね!
2. 大量の買い出しをスムーズにする土間収納からキッチンへの直通動線


6人家族の膨大な買い出し品をスムーズに運び込めるよう、玄関の土間収納からパントリー、キッチンへと直通できる便利な動線が確保されています。
重い荷物をリビングまで運ぶ手間が省けるため、人数が多いからこそ煩雑になりがちな日々の家事負担を劇的に軽減できるのが魅力です。



買い物袋を抱えてリビングを横切らなくていいから、帰宅後の片付けがグッとスムーズになりますね!
なお、モダンな外観の家を作りたい方は、関連記事「【組み合わせ自由】ナチュラルモダンな家を実現する方法8選!成功させる方法や事例も解説」を参考にしてみてください。


3. 回遊動線と2階リビングで6人が集まっても窮屈さを感じない住まい


LDKを2階に配置し、吹き抜けを設けることで、家族全員が集まっても窮屈さを感じない開放的な住まいを実現しています。
オープンキッチンを中心とした回遊動線を採用しており、料理や掃除を効率よくこなしながら、リビングで過ごす子供たちとも自然にコミュニケーションが取れるのが魅力です。



家族が多いほど家事には時間がかかるので、行き止まりのない回遊動線は心強い味方になります!
【平屋】子供4人の6人家族の間取り例3選


ワンフロアで生活が完結する平屋は、家族のコミュニケーションが取りやすい反面、6人で暮らすとなると個室の確保やプライバシーへの配慮に工夫が必要です。
ここでは、実際に限られた面積を最大限に活用して暮らしている、平屋の間取り例を3つ紹介します。
大家族のニーズを満たしながら、平屋ならではの魅力を活かした空間設計のアイデアを探ってみましょう。
1. 段差を設けて家族の気配を感じつつプライバシーも守れる平屋


ワンフロアの平屋でも家族個々のプライバシーを確保できるように、間取りに高低差をつけたのがポイントです。
キッチンやダイニングより低くしたリビングや小上がりタイプの畳スペースなど、段差を設けることで家族の気配は感じつつも視線が交わらないよう設計されています。
また、急勾配な屋根裏を利用し天井の高さを確保することで、開放感を実現しています。6人が一緒の空間にいても狭さを感じにくいのがポイントです。



家族の生活スタイルに合わせた使いやすい空間となっています!
2. 中庭を介して個室を配置し家族の適度な距離感を保てる5LDK


家の中心に中庭を配置することで、どの部屋にいても太陽の光や風を感じられる開放的な住まいを実現しています。
ほぼすべての居室からテラスにアクセスできること、中庭を介して家族の視線が交差する設計をしたことにより、空間につながりが演出されているのも特徴です。



中庭を囲むような設計なら、個室にこもりがちにならず家族を身近に感じられそうですね!
3. 秘密基地のようなロフトや回遊動線で子供がのびのび遊べる家


子供4人が思う存分遊べるよう、室内をぐるぐる回遊できる動線やトンネル状の床下収納など、遊び心を詰め込んだ設計が特徴です。
夫婦で協力して家事を進められる効率的な動線も確保されており、時短で生まれたゆとりを家族全員で過ごす時間に充てられるよう工夫されています。



秘密基地のようなスペースや雲梯がある家なら、雨の日でも子供たちが飽きずに楽しめそうですね!
ここまで実例を紹介してきましたが、家族にぴったりの住まいをつくるのは選択肢が多すぎて決めきれないと悩む方もいるでしょう。そのような方は、専門家にサポートしてもらうことをおすすめします。



住宅のプロ「すーさん」なら8,000人以上の家づくりにかんする悩みを解決してきた実績があるので、安心して相談できますよ!
マイホームのお悩みは「すーさんの相談窓口」の利用がおすすめです。相談は無料なので、以下からお気軽にご連絡ください!
今ならLINE登録で
\6つの特典プレゼント中/
✅ 間取りプラン250選
✅ 家づくりセミナー動画
✅ ハウスメーカー攻略ガイド
✅ 収納計画100のチェックリスト
✅ ハウスメーカー選び100の質問
✅ 家づくり後悔ポイント130のチェックリスト
子供4人の6人家族の間取りを考える際の5つのポイント


子供4人の6人家族の住まいを計画する際は、単に部屋数を増やすだけでなく、家族全員の生活リズムや家事のボリュームを考慮した設計が重要です。
ここでは、長期的かつ快適に暮らすために押さえておきたい、5つの具体的なポイントを紹介します。
- 子供部屋は将来の仕切りを前提に計画する
- 朝の渋滞を防ぐ洗面台・トイレの数と配置
- 大量の洗濯を効率的に捌くランドリー動線
- 家族6人分の靴と学用品を収める玄関・共有収納
- 全員が同時に座れるLDKの広さと家具配置
詳しく見ていきましょう。
1. 子供部屋は将来の仕切りを前提に計画する
子供4人に最初から個室を与えると1部屋が狭くなりがちなため、低学年までは大きなプレイルームとして使い、成長後に壁や家具で仕切る可変性のある設計が理想的です。
あらかじめドアやコンセントを将来の分割数に合わせて配置しておけば、大規模な改修なしでスムーズに個室化できます。
子供の独立後も仕切りを外して広々とした趣味の部屋に戻せるなど、ライフステージに合わせて柔軟に活用できるのが大きなメリットです。



成長に合わせて部屋の形を変えられる設計なら、子供たちが独立した後も無駄なく活用できますね!
2. 朝の渋滞を防ぐ洗面台・トイレの数と配置
家族6人が同じ時間帯に活動する朝は、水回りのパニックを防ぐための工夫が不可欠です。
洗面台は2人並んで使える幅広タイプを選ぶか、脱衣所とは別にメインの洗面コーナーを設けることで、入浴中も気兼ねなく身支度ができるようになります。
また、トイレを各階(平屋なら2か所)に設置するのはもちろん、廊下や玄関付近など家族の動線が重なりにくい場所に配置するのがポイントです。



洗面台を独立させたり幅を広げたりするだけで、忙しい朝のイライラがグッと解消されますね!
3. 大量の洗濯を効率的に捌くランドリー動線
子供が4人いる家庭では、1回ごとの洗濯物の量が膨大になるため、「洗う・干す・畳む・しまう」を最短距離で完結させる動線づくりが重要です。
脱衣所に隣接したランドリールームや、その場ですぐに収納できるファミリークローゼットを配置することで、重い洗濯物を運ぶ負担を大幅に軽減できます。
さらに、室内物干しスペースを十分に確保しておけば、天候を気にせず大量の洗濯物を効率よく捌けるようになり、家事のストレスが軽減されます。



洗濯動線が短いだけで家事の時短になり、家族みんなでリラックスできる時間が増えますね!
4. 家族6人分の靴と学用品を収める玄関・共有収納
子供4人がいる家庭の玄関は、靴だけでなくランドセルや部活動の道具、習い事のバッグなどで溢れがちなため、大容量の土間収納や壁面収納の確保が鍵となります。
玄関付近に家族全員の持ち物を集約できる共有収納を設ければ、リビングに物が散らかるのを防ぎ、スムーズに外出できる環境が整います。
また、成長に合わせて棚の高さを変えられる可動棚を採用することで、増え続ける学用品も無駄なくスッキリと収めることが可能です。



玄関が片付いていると、忙しい朝の出発もスムーズで気持ちにゆとりが持てますね!
5. 全員が同時に座れるLDKの広さと家具配置
家族6人が集まるLDKは、大型のダイニングテーブルやソファを置いても動線が塞がらないよう、一般的な家庭よりも広めのスペースを確保しておくことが大切です。
全員が同時に座れる座席数を確保しつつ、リビング横に畳スペースを設けて段差に腰掛けられるようにすれば、空間を広く使いながら家族のくつろぎの場を増やせます。
ライフスタイルの変化を見据えて、家具のレイアウトを自由に変えられる柔軟な設計にしておくと、子供の成長後も快適な団らんの時間を維持できるでしょう。



家族全員が顔を合わせる場所だからこそ、ゆとりある広さと自由な配置にこだわりたいですね!
6人家族にぴったりの間取りで理想的なマイホームに


子供4人を含む6人家族の住まいづくりでは、平屋・2階建てそれぞれの強みを活かし、大家族ならではの賑やかさを楽しみつつ、家事負担を最小限に抑える間取りを選ぶことが大切です。
今回ご紹介した実例や5つのポイントを参考に、家事動線や収納不足の悩みを解消し、家族全員が笑顔で暮らせる理想の空間を形にしていきましょう。



家族の成長に合わせて変化を楽しめる間取りなら、みんなが笑顔で暮らせる住まいになりますよ!
家づくりで後悔したくない方は、ぜひ「すーさんの相談窓口」をご活用ください。
大手ハウスメーカーで15年間住宅販売をした経験を活かして、さまざまな視点からアドバイスを行っています。8,000人以上の家づくりにかんする悩みを解決してきた実績があるので、お気軽にご相談ください。
\間取りプラン他無料特典プレゼント/


▼今すぐダウンロード▼
✅ 間取りプラン250選
✅ 家づくりセミナー動画
✅ ハウスメーカー攻略ガイド
✅ 収納計画100のチェックリスト
✅ ハウスメーカー選び100の質問
✅ 家づくり後悔ポイント130のチェックリスト















